Electrical & Controls Engineering

Our in house controls group can handle projects of any magnitude.

Our Engineers are well versed in both AUTOCAD Electrical and ePLAN.
Our in-house electrical controls engineering department writes programs for all of our custom machines. This process includes extensive debugging and dry-cycling.

This is an example of how our controls engineers draw a a machine overview print. This is used to call out individual sensors on a machine, and helps to aid builders and electricians to produce consistent results.
Each of our controls engineers are well versed in robotics. We work with Fanuc, ABB, Motoman, and more.

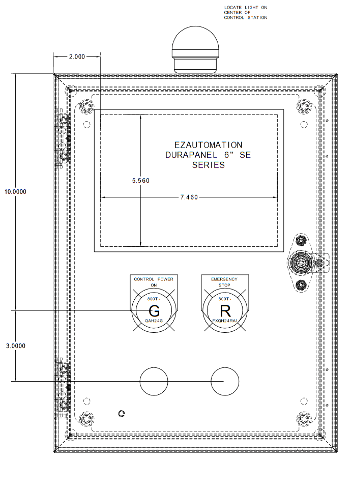
Precise prints from our electrical controls engineers allow our in-house panel building department to operate at peak proficiency.
Each electrical panel designed at Alto Precision includes a detailed layout. These layouts are tailor-made to fit customer specifications.

Our Controls Engineers are proficient in programing logic associated with Allen Bradley and Siemens.

Let’s make something together.

Alto Precision, Inc. | 6534 Clay Ave SW Grand Rapids, MI 49548 | Phone: 616.698.8088
©Alto Precision, Inc. 2024 All Rights Reserved